Aller au contenu principal
Réf. : 14490BAL
Dernière mise à jour de l’annonce : 16/09/2022

Vente

32 945 € (Honoraires de négociation inclus)
31 080 € (Prix net vendeur)
Montant des honoraires : 1 865 €
Pourcentage des honoraires : 6 %
Honoraires à la charge de l'acquéreur
14490 BALLEROY SUR DROME

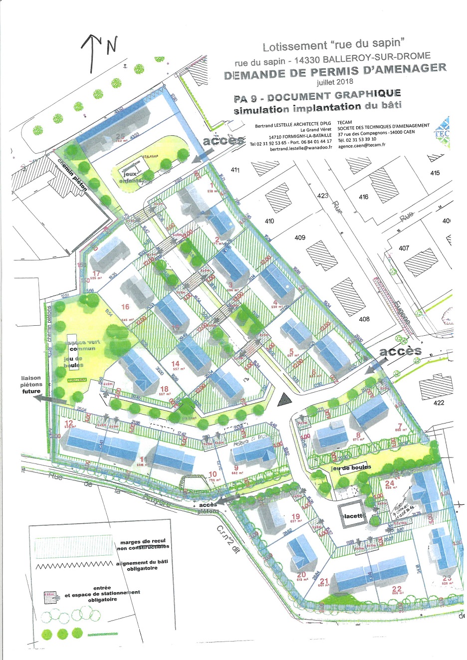
Lotissement communal - diverses parcelles viabilisées - de 518 m2 à 728 m2
surface plancher 200 m2
Prix à partir de 37.188  euros TTC + dépôt de pièces lotissement 200 € + provision pour dégradation 500 €.
Viabilisées (coffrets eau - EDF - Télecom)  prévoir branchement tt égout
Permis d’aménager n° PA 014 035 18 D0002 délivré le 15.01.2019, dossier consultable en Mairie.

Les informations sur les risques auxquels ce bien est exposé sont disponibles sur le site Géorisques : www.georisques.gouv.fr.

Général

Superficie : 518 m2

Conditions de vente

Prix HNI :  32 945 €
(honoraires de négociation inclus)
Prix net vendeur :  31 080 €
Honoraires :  1 865 € (Montant des honoraires de négociation)
Pourcentage d'honoraires :  6 %
Frais d’acte :  4 243 €
Type d'honoraires :  À la charge de l'acquéreur
Situation locative : Libre

Contact

Adresse : 34, Rue du Sapin
Code postal :  14490
Ville :  BALLEROY SUR DROME